Проект 4-14 2003г.
Тип проекта: Архитектура
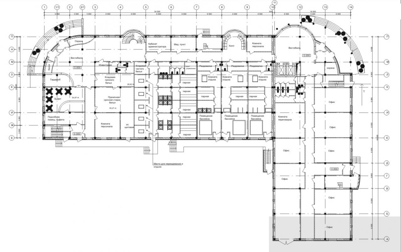
Белеет парус одинокий... или Тотальное оздоровление народонаселения! :)
Оздоровительный центр в Кировском р-не, г.Новосибирск
Архитектор Ольга Юскасова


Project Date:
ноября, 2003