Проект 4-18 2001г.
Тип проекта: Архитектура

Хотели, чтобы ВСЁ! И Сразу!

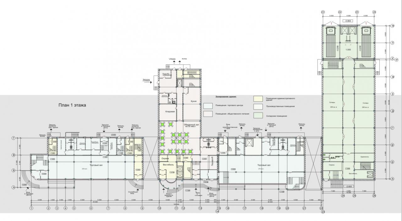
Производственно административный комплекс на ул.Широкой, г.Новосибирск
Архитектор Ольга Юскасова

 

 
Project Date: 
января, 2003